Verkocht
Verkocht: Brantwijk 23, 1181 MS Amstelveen
Beschrijving
Gelegen in de geliefde wijk Elsrijk in Amstelveen, ruim en royaal van opzet én op korte afstand van het Stadshart en de Zuidas – een gezinswoning die ruimte, rust en reuring perfect combineert.Gezinswoning met serre-uitbouw, 5 slaapkamers en zonnige tuin in Elsrijk in Amstelveen. Bent u op zoek naar een royale en goed onderhouden woning in een van de meest geliefde wijken van Amstelveen? Dan is deze eengezinswoning van maar liefst 162 m² woonoppervlak met vijf volwaardige slaapkamers absoluut een bezichtiging waard. De woning is comfortabel uitgerust met onder andere mechanische ventilatie, externe zonwering, een nieuwe combiketel (2025) en beschikt over een energielabel C en Eigen grond!
De uitgebouwde serre vormt een absolute eyecatcher en is een heerlijke plek om het hele jaar door te verblijven. Dankzij de grote raampartijen, openslaande harmonicadeuren naar de tuin en de royale lichtkoepel in het plafond geniet u hier van een overvloed aan natuurlijk daglicht. In de zomer haalt u buiten moeiteloos naar binnen en loopt de leefruimte naadloos over in de zonnige achtertuin op het westen. In de winter zit u hier juist beschut en comfortabel, met een prachtig uitzicht op het groen. Deze ruimte is uitermate geschikt als royale eetkamer of extra zithoek en vormt het sfeervolle hart van het huis waar binnen en buiten samenkomen.
Gelegen in het populaire Elsrijk Noord biedt deze woning alles wat een gezin zich kan wensen. Iin een rustige straat, maar toch op loopafstand van het Stadshart van Amstelveen met een uitgebreid aanbod aan winkels, horeca en culturele voorzieningen.
In de directe omgeving vindt u diverse scholen, speeltuinen en groene wandelparken; perfect voor (jonge) gezinnen. Kortom: een ruim, licht en comfortabel familiehuis op een toplocatie!
De huidige badkamers zijn functioneel en bieden uitstekende mogelijkheden om eenvoudig te moderniseren en geheel naar eigen smaak in te richten, zoals te zien is op de bijgevoegde sfeerimpressies. Tevens is de bovenste verdieping gemakkelijk opnieuw in te delen, met ruimte voor een moderne douche; ideaal voor grotere gezinnen, gasten of een thuiswerkplek.
Indeling
Begane grond Entree met hal, garderobekast en meterkast. Vanuit de hal is er toegang tot de toiletruimte met fontein, de trapkast en de trapopgang met vaste trap. De royale doorzonwoonkamer beschikt over een vaste kast, een sfeervolle gashaard, een kastenwand en een nieuw geplaatst raam aan de voorzijde, wat zorgt voor extra daglicht. Aan de achterzijde bevindt zich een volledig opvouwbare glazen pui met convectorput, die de woonkamer en serre naadloos verbindt met de zonnige tuin. De open keuken met kookeiland sluit aan op de lichte serre-uitbouw met glazen dak en vloerverwarming, waar u het hele jaar door geniet van veel licht en een ruimtelijk gevoel. De serre loopt vloeiend over in de achtertuin op het Westen, voorzien van een gezamenlijke afgesloten achterom en een ruime berging – ideaal voor fietsen en extra opslagruimte.
Eerste verdieping :
Op deze verdieping bevinden zich drie slaapkamers, waaronder een ruime hoofdslaapkamer aan de voorzijde met walk-in kast. De twee slaapkamers aan de tuinzijde zijn eveneens goed bemeten; de kleinere kamer heeft toegang tot een balkon. De badkamer is uitgerust met een ruime inloopdouche, wastafel en toilet.
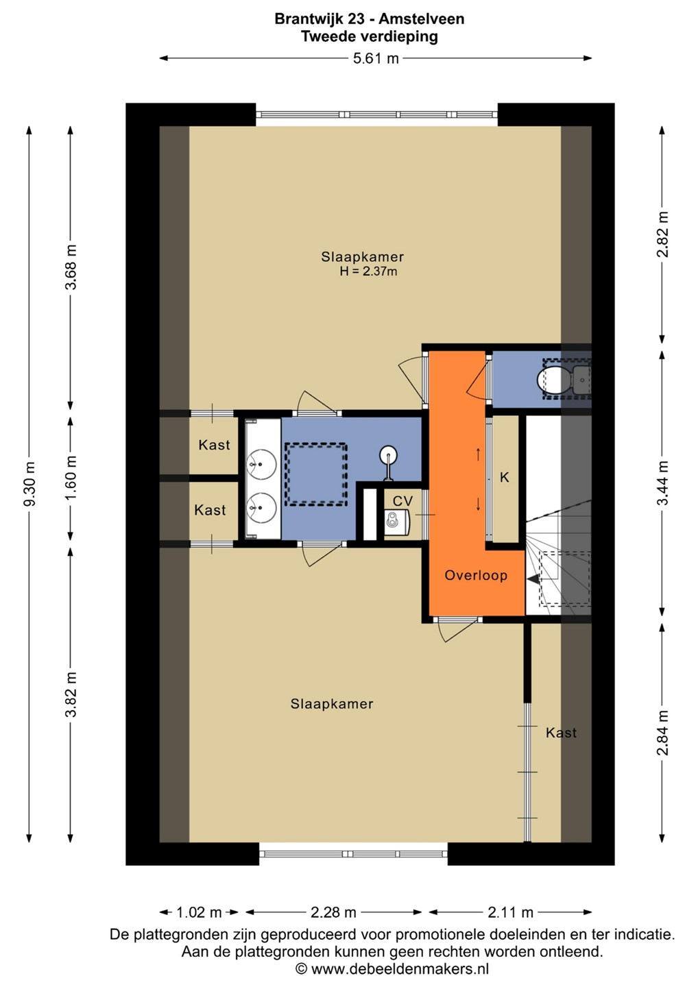
Tweede verdieping :
De bovenste verdieping beschikt over twee royale slaapkamers, gescheiden door een tweede badkamer met douche, wastafel en toilet.
Buitenruimte;
De zonnige achtertuin op het Westen biedt veel privacy en beschikt over een praktische schuur met ingebouwde planken, ideaal voor fietsenstalling en extra opslag. Een heerlijke plek om in de zomer te ontspannen of gezellig te barbecueën met familie en vrienden. De woning is voorzien van dubbele beglazing rondom, wat bijdraagt aan comfort en energiezuinigheid.
Locatie:
Het feit dat de huidige eigenaren hier al 25 jaar met veel plezier wonen zegt genoeg: het is comfortabel, rustig en centraal wonen in de wijk Elsrijk aan de Brantwijk 23 in Amstelveen. De sneltram bevindt zich op korte loopafstand, evenals het Stadshart Amstelveen met winkels, restaurants, theater en het hoofdbusstation.
Met de auto bent u snel op de A9 of A10, met uitstekende verbindingen naar Amsterdam, Haarlem, Utrecht, Schiphol. Openbaar vervoer is uitstekend geregeld: tram 5, de Amstelveenlijn (lijn 25) en diverse buslijnen liggen op loopafstand en brengen u in korte tijd naar het stadshart, Station Amsterdam Zuid, de Zuidas, het VU Medisch Centrum .
Daarnaast zijn er in de directe omgeving diverse speelvoorzieningen, scholen, kinderopvang en winkelcentra aanwezig, evenals haltes van tramlijnen 5 en 25 met directe verbinding naar Amsterdam. De Internationale Scholen zijn binnen 10 à 15 minuten te bereiken per fiets of auto. Er is voldoende parkeergelegenheid in de straat
Kenmerken
• Woonoppervlakte162 m² (conform NEN-2580 meetinstructie)
• Achtertuin op het Westen met veel privacy
• Gezamenlijke afgesloten achterom
• Volledig openslaande glazen pui naar de tuin
• Nieuw raam aan de voorzijde en dubbele beglazing in het hele huis • Voortuin met ruimte voor fietsen
• Gelegen in een groene, rustige omgeving
• In de wijk Elsrijk, gunstig gelegen tussen het Stadshart en Amsterdam-Zuid
• Dichtbij uitvalswegen A10, A2, A9 en A4
• Bouwjaar 1959
• Eigen grond.
• Energielabel C
• Nieuwe cv-ketel (2025)
• Vloerverwarming aanwezig in de serre-uitbouw
• Gelegen op eigen grond
• Oplevering in overleg
Disclaimer: Deze informatie is door ons met de nodige zorgvuldigheid samengesteld. Onzerzijds wordt echter geen enkele aansprakelijkheid aanvaard voor enige onvolledigheid, onjuistheid of anderszins, dan wel de gevolgen daarvan. Alle opgegeven maten en oppervlakten zijn indicatief. Koper heeft zijn eigen onderzoeksplicht naar alle zaken die voor hem of haar van belang zijn. Met betrekking tot deze woning is de makelaar adviseur van verkoper. Wij adviseren u een deskundige VBO-makelaar in te schakelen die u begeleidt bij het aankoopproces. Indien u specifieke wensen heeft omtrent de woning, adviseren wij u deze tijdig kenbaar te maken aan uw aankopend makelaar en hiernaar zelfstandig onderzoek te (laten) doen. Indien u geen deskundige vertegenwoordiger inschakelt, acht u zich volgens de wet deskundige genoeg om alle zaken die van belang zijn te kunnen overzien. Van toepassing zijn de VBO voorwaarden
Indien u een bezichtiging wenst, gelieve deze schriftelijk aan te vragen via FUNDA -> contact met de makelaar engelse vertaling voor funda
English
Located in the beloved Elsrijk neighborhood of Amstelveen, spacious and generously proportioned, and just a short distance from the Stadshart and the Zuidas – a family home that perfectly combines space, serenity, and city life.
A home with conservatory extension, 5 bedrooms and sunny Garden in Elsrijk, Amstelveen Are you looking for a well-maintained family home in one of Amstelveen’s most sought-after residential areas? Then this spacious terraced house with approximately 162 m² of living space and five full-sized bedrooms is definitely worth viewing. The property is comfortably equipped with, among other features, mechanical ventilation, external sun blinds, a new central heating boiler (2025) and an energy label C.
The extended conservatory is a true highlight and a wonderful place to enjoy all year round. Thanks to the large windows, fully opening folding glass doors to the garden, and a generous skylight in the ceiling, the space is filled with natural daylight. In summer, indoor and outdoor living flow seamlessly together, while in winter you can enjoy a cozy, sheltered space with beautiful views of the greenery. This area is ideal as a spacious dining room or additional sitting area and truly forms the heart of the home where inside and outside meet.
Located in the popular Elsrijk Noord district, this home offers everything a family could wish for. Situated in a quiet street, yet within walking distance of Amstelveen Stadshart, with its wide range of shops, restaurants, cultural venues and public transport connections. Several schools, playgrounds and green parks are nearby – perfect for families with children.
The current bathrooms are functional and offer excellent opportunities to modernize according to your own taste, as shown in the included impression images. The top floor can also easily be redesigned to include a modern shower room – ideal for larger families, guests or a home office.
Layout
Ground floor
Entrance hall with cloakroom cupboard and meter cupboard. From the hall you access the toilet with washbasin, storage cupboard under the stairs and the staircase to the upper floors.
The spacious through-living room features built-in storage, a cozy gas fireplace, a wall of cupboards and a newly installed front window providing extra daylight. At the rear there is a fully folding glass façade with floor convector, connecting the living room seamlessly to the sunny garden and conservatory.
The open kitchen with cooking island connects directly to the bright conservatory extension with glass roof and underfloor heating, creating a spacious and light-filled living area. The conservatory flows smoothly into the west-facing garden, which features a shared secured rear entrance and a large storage shed – perfect for bicycles and extra storage.
First floor
This floor offers three bedrooms, including a spacious master bedroom at the front with walk-in closet. The two bedrooms at the rear are also well-sized; the smaller one has access to a balcony. The bathroom is fitted with a walk-in shower, washbasin and toilet.
Second floor
The top floor contains two generous bedrooms, separated by a second bathroom with shower, washbasin and toilet.
Outdoor space
The sunny west-facing garden offers plenty of privacy and includes a practical shed with built-in shelving, ideal for bicycles and storage. A perfect spot to relax in summer or enjoy barbecues with family and friends.
The home is fully fitted with double glazing, contributing to comfort and energy efficiency.
Location
The fact that the current owners have lived here happily for over 25 years speaks volumes: comfortable, peaceful and centrally located living in Elsrijk, at Brantwijk 23 in Amstelveen.
The light rail tram stop is within walking distance, as well as Amstelveen Stadshart with shops, restaurants, theater and the main bus station. By car, you can quickly reach highways A9, A10, A2 and A4, providing excellent connections to Amsterdam, Haarlem, Utrecht and Schiphol Airport.
Public transport is excellent, with tram lines 5 and 25 and various bus routes nearby, offering direct connections to Amsterdam Zuid, the Zuidas business district and VU Medical Center.
Several playgrounds, schools, childcare facilities and shopping centers are located in the immediate area. International Schools can be reached within 10–15 minutes by bike or car. There is ample parking available in the street.
Key features
• Living area approx. 162 m² (measured according to NEN 2580 guidelines)
• Sunny west-facing backyard with lots of privacy
• Shared secured rear entrance
• Fully opening glass façade to the garden
• New front window and double glazing throughout the house
• Front garden with space for bicycles
• Located in a green and quiet area
• Situated in Elsrijk, ideally between Stadshart and Amsterdam South
• Close to major highways A10, A2, A9 and A4
• Year of construction: 1959
• Energy label C
• NO Leasehold
• New central heating boiler (2025)
• Underfloor heating in the conservatory extension
• Freehold property (own land)
• Delivery in consultation
Disclaimer
This information has been compiled with due care. However, no liability is accepted for any incompleteness, inaccuracies or the consequences thereof. All stated measurements and surface areas are indicative. The buyer has their own duty to investigate all matters that are of importance to them. With regard to this property, the real estate agent acts as advisor to the seller. We advise engaging a professional purchasing agent who will guide you through the buying process. If you have specific requirements regarding the property, we recommend making these known in time and conducting independent research. If you do not engage a professional representative, you are deemed sufficiently expert by law to oversee all relevant matters. The VBO conditions apply.
If you would like to schedule a viewing, please submit your request in writing via Funda – “Contact the agent.”
Kenmerken
| Overdracht | |
|---|---|
| Referentienummer | 01499 |
| Vraagprijs | € 865.000,- k.k. |
| Status | Verkocht |
| Aanvaarding | In overleg |
| Aangeboden sinds | Vrijdag 30 januari 2026 |
| Laatste wijziging | Donderdag 26 maart 2026 |
| Bouw | |
|---|---|
| Type object | Woonhuis, eengezinswoning, tussenwoning |
| Soort bouw | Bestaande bouw |
| Bouwperiode | 1959 |
| Type dak | Samengesteld |
| Isolatievormen | Grotendeels dubbel glas Vloerisolatie |
| Oppervlaktes en inhoud | |
|---|---|
| Perceeloppervlakte | 148 m² |
| Woonoppervlakte | 162,7 m² |
| Inhoud | 535 m³ |
| Oppervlakte externe bergruimte | 8,8 m² |
| Oppervlakte gebouwgebonden buitenruimte | 2,7 m² |
| Indeling | |
|---|---|
| Aantal bouwlagen | 3 |
| Aantal kamers | 6 (waarvan 5 slaapkamers) |
| Aantal badkamers | 2 (en 3 aparte toiletten) |
| Locatie | |
|---|---|
| Ligging | Dichtbij openbaar vervoer In woonwijk Nabij school |
| Tuin | |
|---|---|
| Type | Achtertuin |
| Hoofdtuin | Ja |
| Oriëntering | West |
| Heeft een achterom | Ja |
| Staat | Goed onderhouden |
| Tuin 2 - Type | Voortuin |
| Tuin 2 - Oriëntering | Oosten |
| Tuin 2 - Staat | Goed onderhouden |
| Energieverbruik | |
|---|---|
| Energielabel | C |
| CV ketel | |
|---|---|
| CV ketel | Intergas |
| Warmtebron | Gas |
| Bouwjaar | 2025 |
| Combiketel | Ja |
| Eigendom | Eigendom |
| Uitrusting | |
|---|---|
| Warm water | CV-ketel |
| Verwarmingssysteem | Centrale verwarming |
| Keukenvoorzieningen | Inbouwapparatuur Spoeleiland |
| Badkamervoorzieningen Badkamer 1 | Douche Toilet Wastafel |
| Badkamervoorzieningen Badkamer 2 | Wastafelmeubel |
| Tuin aanwezig | Ja |
| Heeft schuur/berging | Ja |
| Kadastrale gegevens | |
|---|---|
| Kadastrale aanduiding | Amstelveen H 8076 |
| Perceeloppervlakte | 148 m² |
| Omvang | Geheel perceel |
| Eigendomsituatie | Eigen grond |